DIDASCALIA Committente: CONSORZIO API s.c.a.r.l. Impresa Ospedaletto
Impresa: Impresa Cavani CO.MO.TER. srl (Lucca)
Progetto architettonico: arch. Antonio Ghionzoli
Collaboratori: geom. Massimo Bongianni
Progetto strutturale: ing. Fabio Terrosi (Firenze)
Impianti meccanici: ing. Stefano Panicucci (Pisa)
Impianti elettrici: ing. Claudio Stacchini (Pisa)
Opere urbanizzazione: ing. Stefano Panicucci (Pisa)
Progetto sicurezza: ing. Mario Iafrate (Pisa)
Coord e Dir. cantiere: geom. Marcello Puccini (Livorno)
Costo dell’opera: €. 4.500.000,00
Realizzazione: progetto 2001 fine lavori 2006

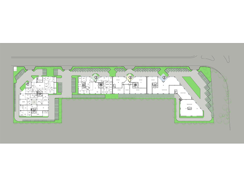
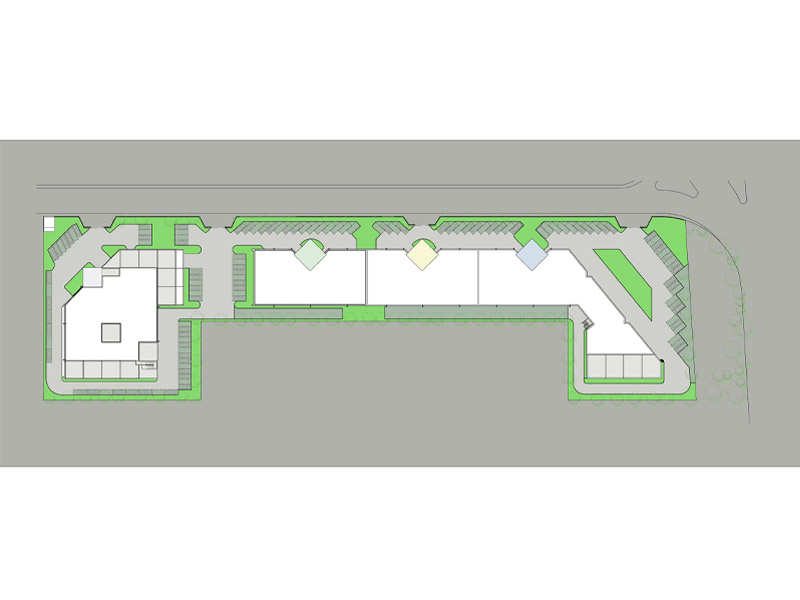
RELAZIONE L’area dell’intervento si colloca ai margini Est della zona industriale di Ospedaletto in Pisa ed è posizionata in angolo tra la via di Oratoio e la nuova strada prevista nel PRG (realizzata dal Consorzio) che conclude e delimita la zona industriale di nord-est.
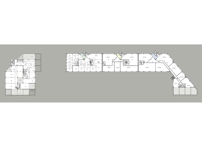
Il progetto si è posto l’obiettivo di “mettere in mostra” le attività, già conosciute in quanto operatori consorziati, limitando gli elementi opachi e proponendo una serialità di trasparenze e finestrature che consentono di distinguere le attività che si andranno ad insediare.
La caratteristica edilizia dell’edificio, notevole sviluppo del fronte e limitata altezza, rischiava di appesantire l’immagine esteriore e questa preoccupazione ha portato alla scelta di definire ampie superfici vetrate e alcuni elementi geometrici, avanzati rispetto al fronte edificato, in vetro che contengono i corpi scala; questi scaricano trasparenza e danno al complesso maggior leggerezza; lo stesso si presenta con linee geometriche ben definite e la copertura interamente piana che ne consente l’utilizzazione a terrazza nelle zone laterali trovando luogo tutte le apparecchiature impiantistiche di termo-condizionamento e quant’altro necessario.
Il tamponamento esterno dell’intero complesso si presenta in modo uniforme poiché mostra solamente due materiali principali: il vetro che conferisce trasparenza e “permeabilità” tra interno ed esterno e la muratura a faccia vista in blocchi splittati colore giallo Firenze con ricorsi orizzontali e verticali che favoriscono il rapporto con le altre linee della facciata, con gruppi scale delimitati da vetrate continue e distinti ciascuno con una diversa gradazione cromatica.